Ons kantoor is lid van Baerz & Co Luxury Homes; een internationaal platform dat exclusieve woningmakelaars met elkaar verbindt. Neem contact op met ons secretariaat voor meer informatie over het landelijke aanbod, waarvan u hieronder een selectie kunt bekijken.

NUNSPEET
Groenelaantje 35 d - 8072 DC
Netherlands

Ellen Schoneveld profile image
Ellen Schoneveld
Real Estate Agent
€1,290,000 k.k.
Living Area
414m2
Plot Size
1145m2
Bedrooms
7

Description

Boschhuis Nunspeet – OPEN HUIS BIJ DE 4 BESCHIKBARE WONINGEN OP 24 JANUARI A.S. TUSSEN 10.00 EN 12.00 UUR

Wonen in een voormalig sanatorium, midden in de Veluwse bossen.
Op de Veluwe, omringd door weelderig groen en oude bomen, staat het Boschhuis: een voormalig sanatorium uit 1925, recentelijk getransformeerd in zeven exclusieve bosvilla’s. De geliefde vooroorlogse bouwstijl, met zijn kenmerkende symmetrie, grote overstekken en monumentale gevels, is zorgvuldig behouden en gerestaureerd.

Historische grandeur, modern comfort
De bosvilla’s ademen nog altijd de sfeer van het verleden, met hoge plafonds, authentieke details en grote raampartijen die je het bos in al zijn pracht doen beleven. Tegelijkertijd zijn de villa’s volledig toekomstbestendig: gasloos, voorzien van vloerverwarming en -koeling via een eigen bodembron, HR++ glas en optimale isolatie. Het resultaat? Een energielabel A++, lage energielasten én met het comfort van een hypermoderne verwarming.

Nieuwbouw garages en carports, geïnspireerd op het verleden
Elke villa wordt geleverd inclusief een nieuwe houten garage met dubbele carport, speciaal ontworpen in de stijl van de voormalige lighallen van het sanatorium. De garage biedt ruimte voor twee auto’s onder de carport, twee extra parkeerplaatsen, plus extra berging in de garage.

Ligging
Het Boschhuis ligt aan de rand van Nunspeet op de Veluwe. Een lommerrijk gebied met vele wandel- en fietsroutes, in de bossen op loopafstand van de Zandenplas en op fietsafstand van het levendige centrum van Nunspeet. Geniet van de rust en privacy op uw ruime kavel. Beleef de seizoenen, geniet van het gezang van de vogels.
Voorzieningen als scholen, winkels, horeca en medische zorg zijn op fietsafstand. De A28 of het NS-station zijn nabij om snel in bijvoorbeeld Zwolle of Amersfoort te komen.

Beperkt beschikbaar
Van de zeven unieke bosvilla’s zijn er reeds drie in de voorverkoop verkocht. De renovatie van de vier overige woningen is vrijwel afgerond en deze kunnen snel worden betrokken. Maak een afspraak voor een bezichtiging en ontdek hoe u kunt wonen in een historisch pand, midden in de natuur, met alle gemakken van nu.

Groenelaantje 35D
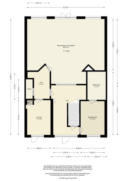
Deze enorm ruime en lichte woning heeft een grote, hoge woonkamer met open keuken én een slaapkamer met badkamer op de begane grond welke inpandig te bereiken is maar ook via een eigen buitendeur. Daarmee zeer geschikt als gastenverblijf, mantelzorgwoning of bijvoorbeeld een praktijk aan huis. De verdiepingen zijn bereikbaar via een monumentaal trappenhuis met fraaie raampartijen in glas-in-lood. Op de eerste verdieping bevinden zich een ‘master bedroom’ met een eigen badkamer en een kleedkamer. Tevens een slaapkamer en een tweede badkamer. De tweede verdieping heeft 4 slaapkamers en een badkamer. De zolderetage is een enorme multifunctionele open ruimte met mogelijkheid voor een kitchenette. Zeer geschikt voor hobby’s, sporten of bijvoorbeeld werkplekken. Tenslotte is er nog een kelder van circa 33m² aanwezig.

Kenmerken:
- Woonoppervlak: 407m², ruim en licht, met zeven slaapkamers en vier badkamers.
- Oriëntatie: op het zuiden, met optimale zon inval en uitzicht op het bos. De tuin heeft ieder moment van de dag zon.
- Duurzaamheid: (voorlopig) energielabel A++, gasloos, vloerverwarming/-koeling via bodembron.
- Parkeergelegenheid: nieuwe houten garage (circa 35m²), dubbele carport (circa 35m²) en nog twee extra parkeerplaatsen.
- Afwerking: casco-plus, zodat u de woning naar eigen smaak kunt inrichten.
- De woningen zitten niet in een Vereniging van Eigenaren. Wel zijn er enkele bepalingen van kracht om het karakter van het gebouw en de tuinen te waarborgen.

Boschhuis Nunspeet; een nieuw hoofdstuk, klaar om te beginnen? Bel voor een bezichtiging: 038 – 460 76 90.

Features

Transfer of ownership
Asking Price
€ 1.290.000 k.k.
Status
beschikbaar
Acceptance
in overleg
Construction
Kind of house
Herenhuis
Building type
tussenwoning
Construction period
1925
Energy rating
A++
Roof type
samengesteld dak
Bedrooms
7
Bathrooms
3
Surface Areas And Volume
Living Area
414 m2
Other indoor space
36 m2
External storage space
38 m2
Volume in cubic meters
1988 m3
Plot Size
1145 m2
Facilities
Mechanische ventilatie
Tv kabel
Aan bosrand
Aan rustige weg
Beschutte ligging
In bosrijke omgeving
Baerz & Co Property Brochure

Brochure

Videos

Floor Plans

Villa Friesland Makelaardij

Lange Marktstraat 1
8911 AD Leeuwarden

info@villafriesland.nl
+31 (0)58 - 23 006 23

www.villafriesland.nl

Information / Viewing request

Ellen Schoneveld profile image
Ellen Schoneveld
Real Estate Agent

Buying a Luxury Property in Nunspeet

Nunspeet offers an extraordinary blend of privacy, refined living, and community connection. Its unique combination of nature, culture, and premium services creates an enduring destination for discerning global residents and investors seeking lasting quality.