Ons kantoor is lid van Baerz & Co Luxury Homes; een internationaal platform dat exclusieve woningmakelaars met elkaar verbindt. Neem contact op met ons secretariaat voor meer informatie over het landelijke aanbod, waarvan u hieronder een selectie kunt bekijken.

Bovenwoning te koop in AMSTELVEEN

AMSTELVEEN Burgemeester Rijnderslaan 260 - 1185 MC Nederland


Sander Bovenkerk profile image
Sander Bovenkerk
Real Estate Agent
+31 6 55 74 61 72
info@heerenmakelaars.nl

Heeren Makelaars
Stadionweg 75
1077 SE Amsterdam
NETHERLANDS
+31 0204702255
www.heerenmakelaars.nl
info@heerenmakelaars.nl

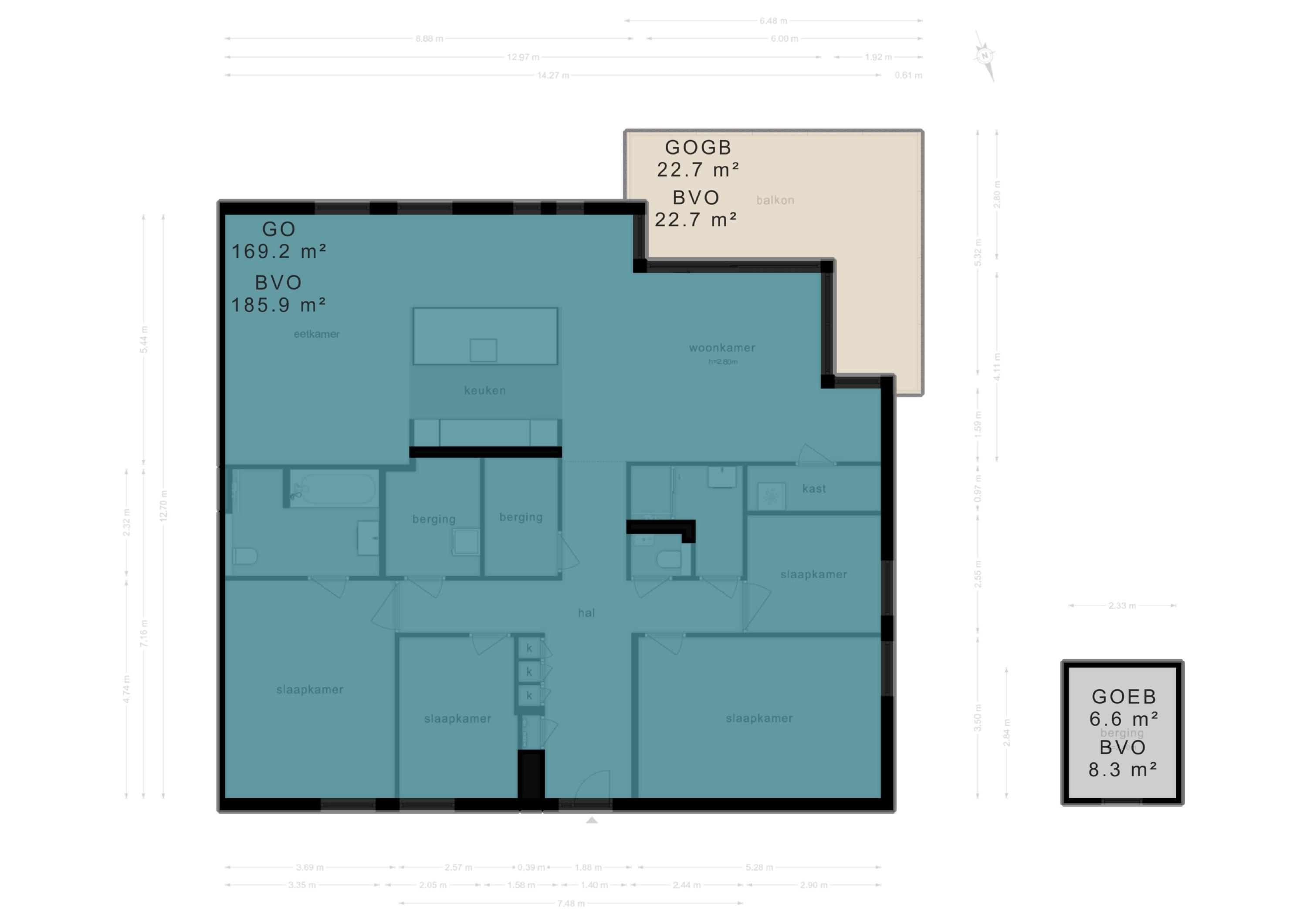
Woonoppervlakte
169m2
Perceeloppervlakte
N/A
Slaapkamers
4

Omschrijving

EXCLUSIEF APPARTEMENT OP DE GROENE ZUIDKANT VAN THE MAYOR MET TERRAS

In de The Mayor gelegen zeer exclusief en uniek appartement met veel natuurlijk licht in een uniek ontwerp. Het appartement is ca. 170 m2 groot, heeft 4 slaapkamers, 2 badkamers, terras op het zuidwesten en heeft een ruime berging onder het gebouw. Separaat zijn er twee parkeerplaatsen te koop in de parkeergarage.

Indeling:
De entree bereikt u via een privé loopbrug. De royale hal biedt toegang tot alle vertrekken en inbouw garderobekasten. Het appartement is voorzien van een vloer gelegd in visgraat en is van PVC. Er is overal vloerverwarming en vloerkoeling.

De mooie, grote woonkamer heeft veel natuurlijk licht via de vele ramen. Het Siematic kookeiland is een ware blikvanger. De keuken is uitgerust met diverse inbouwapparatuur, te weten: een inductiekookplaat met geïntegreerde afzuiging, oven (zelfreinigend), combi oven-magnetron, Quooker en een grote koelkast. Er is ook een aparte pantry aanwezig met ruimte voor een wijnklimaatkast en vriezer. Het zonnige balkon is gelegen op het zuid-westen en biedt een heerlijke plek om te ontspannen en te genieten van het vrije uitzicht.

De woning beschikt over 4 ruime slaapkamers, waarvan de master bedroom van circa 17,5 m² voorzien is van een airco en een badkamer en suite. Deze badkamer heeft een ligbad, inloopdouche, toilet, designradiator en een wastafelmeubel.

De tweede badkamer is voorzien van een douche, wastafelmeubel en een separaat toilet met fonteintje. Daarnaast is er een aparte stook/bergruimte én een aparte laundry room met voldoende ruimte voor uw wasmachine en droger. De studeerkamer van circa 18,5 m² is voorzien van een airco.

Dit luxueuze appartement beschikt over een berging en 2 parkeerplaatsen (separaat te koop) met laadstation. Zowel de berging als de parkeerplaatsen bevinden zich in de parkeergarage en is met de lift bereikbaar.

Bijzonderheden:
• Uniek appartement met terras
• Twee parkeerplaatsen separaat te koop voor € 50.000,- KK per parkeerplaats
• Het Energielabel is A+.
• Vrijwel overal is de plafondhoogte 2,81 meter
• De gordijnen zijn deels elektrisch te bedienen.
• Het appartement is voorzien van kozijnen met HR++ glas
• Er is een contract met Eteck voor de WTW en KWO systeem
• De maandelijkse VVE bijdrage bedraagt € 322,48; voor de parkeerplaatsen € 62,39 per maand.
• Er zijn 3 airco units aanwezig.
• The Mayor staat op eigen grond.
• Oplevering in overleg.

Het appartement is voorzien van moderne technologieën zoals een WTW en KWO systeem. Geniet van het comfort van vloerverwarming en vloerkoeling (individueel per kamer te bedienen) door de hele woning. Daarnaast heeft de woonkamer ook een airco.

The Mayor
The Mayor in Amstelveen biedt ultiem wonen, passend bij uw levensstijl. Een zeldzame plek waar alles samenkomt. Waar luxe en comfort elke dag voelbaar zijn. Alles in perfecte harmonie. Omringd door het Amsterdamse bos, Amstelveens Heemparken en uitgestrekte polderlandschappen. Maar ook het sfeervolle en gezellige winkelcentrum Stadshart en de perfecte bereikbaarheid. The Mayor verrast. Telkens weer.

In het hart van Amstelveen, op de plek waar eens een iconisch kantoorgebouw stond is The Mayor herrezen. Een werkelijk uniek woonproject met internationale allure. Duurzame nieuwbouw met fraai ontworpen Garden Apartments, ruime Luxury Apartments en schitterende Penthouses. Een stijlvolle metamorfose op de best bereikbare locatie met veel luxe, ruimte en rust. Dit is waar u altijd naar gezocht hebt. Hier worden woonwensen vervuld.

Faciliteiten
In het hart van The Mayor bevindt zich appartementengebouw The Mayor Four. Bijzonder is dat er een fietspad is aangelegd waardoor fietsers zich gemakkelijk van Amstelveen Noord naar Amstelveen Zuid kunnen begeven. Centraal gelegen in het complex is de aanwezigheid van een Conciërge, die toezicht houdt op de woningen en hulp verleent aan de bewoners waar nodig. Daarnaast zijn er onder andere een georganiseerde sportgelegenheid, een nagelstudio, kapper en pakket- en postservice gevestigd in de daarvoor bestemde ruimtes op de begane grond.

Architectuur
Architectenbureau MVDS uit Amsterdam heeft The Mayor ontworpen. De acht gebouwen krijgen verschillende hoogtes en zijn zo ontworpen dat er een intens gevoel van ruimte beleving ontstaat. De luxe afgewerkte leefomgeving houdt rekening met woonwensen van de toekomstige bewoners. Goed beveiligde garages, stijlvolle entrees, ruime balkons en praktisch ingedeelde woning plattegronden. Architectuur, klasse, design en openbaar groen zijn overal zichtbaar. Transparante corridors en de vele liften zorgen voor een snelle route naar de individuele appartementen.

Het ontwerp van de parkachtige omgeving en de binnentuinen van The Mayor komen van Lodewijk Baljon Landschapsarchitecten. Zij staan bekend om hun ambachtelijke toepassingen met nieuwe technieken en materialen. De landschapsarchitecten richten ook het nieuwe Meander-park in dat bovenop de verdiepte en overkapte A9 wordt gerealiseerd.

A9
Het wegdek van de A9 wordt verdiept aangelegd waardoor geluidsoverlast tot een minimum wordt beperkt. Vanuit de beveiligde garage rijdt u zonder stoplichten de snelweg op. Op de 85 meter brede overkapping over de A9 komt het Meanderpark. Het park op de overkapping krijgt een waterpartij, zitbankjes, een fiets- en voetpad. Binnen een paar minuten wandelt u straks vanuit The Mayor door het nieuwe Meanderpark naar het Stadshart.

Locatie
Amstelveen is een internationale stad waar business, cultuur en leisure in harmonie samenkomen, op loopafstand van The Mayor. De schouwburg, poppodium P60, het Cobra Museum en Cinema Amstelveen. The City Garden in het winkelcentrum Stadshart met een ruim aanbod aan restaurants, cafés en brasserieën. En mocht u toch naar Amsterdam willen, met een goed kwartier rijden bent u op het Museumplein. Amstelveen is de thuisbasis van twee golfbanen.

Wist u dat Amstelveen al jaren behoort tot een van de groenste gemeenten van de randstad? Het Amsterdamse Bos is op steenworp afstand. Ten oosten van The Mayor ligt het uitgestrekte gebied Ouder-Amstel met meanderende rivier de Amstel en uitgestrekte polderlandschappen. Liefhebbers van watersport varen naar de zuidelijk gelegen Vinkeveense- en Loosdrechtse Plassen.

Faciliteiten
Centraal in het ontwerpplan ligt appartementengebouw The Mayor Four. Bijzonder is dat onder het gebouw door een fietspad wordt aangelegd die fietsers en voetgangers verbindt van Amstelveen-Noord naar Amstelveen-Zuid. Op de begane grond vindt u de service-units van M-Exclusive: een reeks diensten en services samengesteld op verzoek van de bewoners en waar zij onbeperkt gebruik van kunnen maken. In de planning staan een Gym en een Coffeecorner. Bijzonder is de aanwezigheid van een Conciërge. Hij is u van dienst bij het regelen van postpakketten, stomerijservice en taxiservice. Op verzoek ontvangt hij uw gasten. Bij vakantie of afwezigheid past hij op uw appartement. Heeft u last-minute een oppas nodig? Vraag het uw conciërge.

Deze informatie is door ons met de nodige zorgvuldigheid samengesteld. Onzerzijds wordt echter geen enkele aansprakelijkheid aanvaard voor enige onvolledigheid, onjuistheid of anderszins, dan wel de gevolgen daarvan. Alle opgegeven maten en oppervlakten zijn indicatief. Koper heeft zijn eigen onderzoeksplicht naar alle zaken die voor hem of haar van belang zijn. Met betrekking tot deze woning is de makelaar adviseur van verkoper. Wij adviseren u een deskundige (NVM-)makelaar in te schakelen die u begeleidt bij het aankoopproces. Indien u specifieke wensen heeft omtrent de woning, adviseren wij u deze tijdig kenbaar te maken aan uw aankopend makelaar en hiernaar zelfstandig onderzoek te (laten) doen. Indien u geen deskundige vertegenwoordiger in-schakelt, acht u zich volgens de wet deskundige genoeg om alle zaken die van belang zijn te kun-nen overzien. Van toepassing zijn de NVM voorwaarden.

Kenmerken

Overdracht
Vraagprijs
€ 1.350.000 k.k.
Status
beschikbaar
Aanvaarding
in overleg
Bouw
Soort woonhuis
Bovenwoning
Bouwjaar
2021
Energieklasse
A_P
Soort dak
plat dak
Slaapkamers
4
Badkamers
2
Oppervlakten en inhoud
Woonoppervlakte
169 m2
Overige inpandige ruimte
0 m2
Gebouwgebonden buitenruimte
23 m2
Externe bergruimte
7 m2
Inhoud
576 m3
faciliteiten
Mechanische ventilatie
Tv kabel
Lift
Baerz & Co Property Brochure

Brochure

Informatie / bezichtigingsaanvraag

Video's

Video Burgemeester Rijnderslaan 260

Foto's

Plattegronden