Ons kantoor is lid van Baerz & Co Luxury Homes; een internationaal platform dat exclusieve woningmakelaars met elkaar verbindt. Neem contact op met ons secretariaat voor meer informatie over het landelijke aanbod, waarvan u hieronder een selectie kunt bekijken.

Woonboerderij te koop in EEMNES

EEMNES Wakkerendijk 190 - 3755 DH Nederland


Marquiette Schaap profile image
Marquiette Schaap
Real Estate Agent
+31 (0)35 76 35 424
hello@artoflivingbymar.com

Art of Living by Marquiette & Partners

Woonoppervlakte
264m2
Perceeloppervlakte
10840m2
Slaapkamers
5

Omschrijving

Landelijk leven met karakter en vrijheid – uniek wonen in het buitengebied van Eemnes maar op 10 autominuten van Laren en Blaricum.

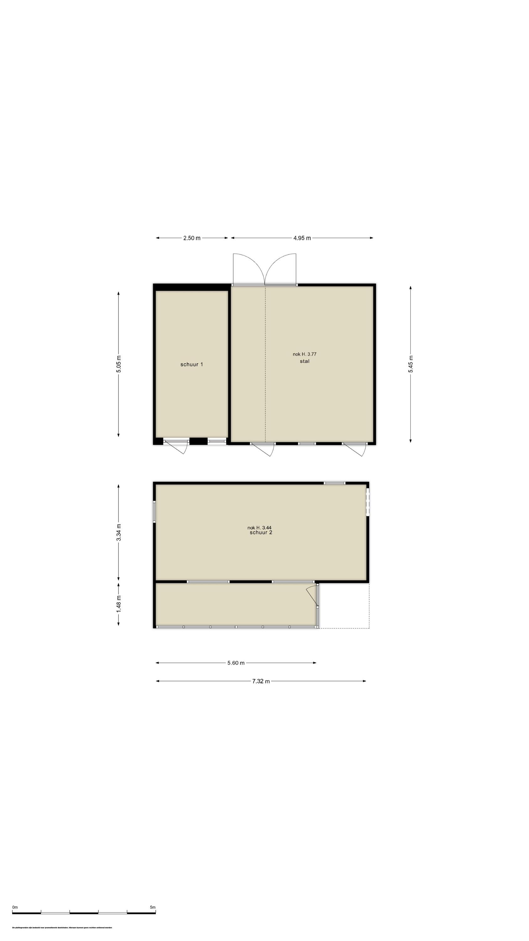
Aan het einde van een lang oprijpad – dat slechts voor een gedeelte gedeeld wordt met twee andere woningen – opent een elektrisch hek de poort naar jouw eigen stukje paradijs. Hier bevindt zich deze charmante rietgedekte woonboerderij, het achterste gedeelte omringd door weidsheid en mooie oude treurwilgen. Op een perceel van circa 1,1 hectare en een woonoppervlak van 264 m² voelt het hier alsof je een hoofdstuk uit een landelijke droom binnenstapt. 2 bijgebouwen met ieder een oppervlak van ca. 40m2: een voormalig paardenstal en een schuur. Tevens is er een voormalige buitenbak met verlichting.

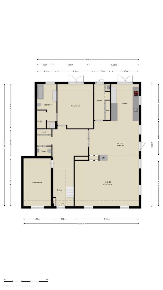
Binnen word je verwelkomd in een ruime hal waar direct het gevoel van huiselijkheid je tegemoetkomt. Aan de voorzijde bevindt zich een sfeervolle werkkamer, ideaal voor wie graag in alle rust thuis werkt – of simpelweg een goed boek wil lezen. Aan dezelfde zijde is er een royale slaapkamer op de begane grond, met een eigen badkamer voorzien van een wastafelmeubel, ligbad, douche en aansluitingen voor wasmachine en droger. Daarnaast is er een separaat toilet.

Loop je verder, dan opent zich aan de achterkant van de woning een verrassend ruime en lichte woonkamer, waar een open haard voor gezellige winteravonden zorgt. De kamer grenst naadloos aan het eetgedeelte en een moderne open keuken voorzien van Miele inbouwapparatuur– samen vormen ze het hart van het huis, met uitzicht op de diepe tuin en daarachter het weidse landschap. Geen schilderij kan hieraan tippen. De naastgelegen bijkeuken zorgt voor extra opslag en praktisch gemak.

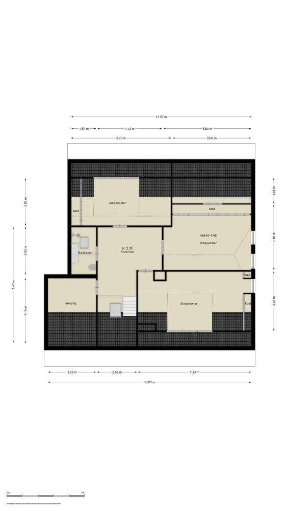
De eerste verdieping heeft alles wat je nodig hebt voor gezinsleven of logees: een sfeervolle ouderslaapkamer met zicht tot in de nok en vaste kasten, waarbij het uitzicht over de weilanden zorgt voor een rustige start van elke dag. Verder zijn er twee gezellige kinderkamers, evenals een tweede badkamer met douche, toilet en wastafelmeubel – zodat iedereen in huis zijn of haar eigen plek heeft, en natuurlijk bergruimte.

Buiten wacht het echte buitenleven. Een grote moestuin, twee vrijstaande schuren (waarvan één met voormalige paardenstallen), en genoeg ruimte voor paarden, pony’s of zelfs een collectie oldtimers. Of je nu dierenliefhebber bent, een hobbyist met grote plannen of gewoon op zoek bent naar ruimte voor je hobby’s: hier kun je alle kanten op.

Kortom door slaapkamer beneden ideaal voor diverse doelgroepen en of kangeroewonen.

En ja, met energielabel B is het ook nog verrassend comfortabel en duurzaam wonen.

Een plek waar privacy en vrijheid samenkomen, waar het buitenleven geen droom is maar werkelijkheid!

Kenmerken

Overdracht
Vraagprijs
€ 1.725.000 k.k.
Status
verkocht onder voorbehoud
Aanvaarding
in overleg
Bouw
Soort woonhuis
Woonboerderij
Soort bouw
twee onder een kapwoning
Bouwjaar
1896
Energieklasse
B
Soort dak
zadeldak
Slaapkamers
5
Badkamers
2
Oppervlakten en inhoud
Woonoppervlakte
264 m2
Overige inpandige ruimte
0 m2
Externe bergruimte
73 m2
Inhoud
1030 m3
Perceeloppervlakte
10840 m2
faciliteiten
Mechanische ventilatie
Alarminstallatie
Rookkanaal
Dakraam
Open ligging
Buiten bebouwde kom
Landelijk gelegen
Baerz & Co Property Brochure

Brochure

Informatie / bezichtigingsaanvraag

Video's

Foto's