Ons kantoor is lid van Baerz & Co Luxury Homes; een internationaal platform dat exclusieve woningmakelaars met elkaar verbindt. Neem contact op met ons secretariaat voor meer informatie over het landelijke aanbod, waarvan u hieronder een selectie kunt bekijken.

Villa prijs op aanvraag in OIRLO

OIRLO Meerloseweg 12 - 5808 AM Nederland


Dirk van Santvoort profile image
Dirk van Santvoort
Real Estate Agent
+31 492 52 5552
dirk@vansantvoort.nl

Van Santvoort Makelaars
Torenallee 65
5617 BB Eindhoven
NETHERLANDS
+31 40 269 25 30
www.vansantvoort.nl
info@eindhoven.vansantvoort.nl

Woonoppervlakte
176m2
Perceeloppervlakte
29990m2
Slaapkamers
4

Omschrijving

Een complete hippische accommodatie met volop mogelijkheden voor de (semi)professionele paardenliefhebber!

De accommodatie biedt volop mogelijkheden door de aanwezigheid van een volop ruimtebiedende vrijstaande woning (levensloopbestendig) met zeer royale vrijstaande garage, een rijhal met binnenpiste en ontvangstruimte en in totaal 26 boxen. Een buitenpiste, longeercirkel, stapmolen en weiland maken het plaatje compleet!

WOONHUIS
Begane grond:
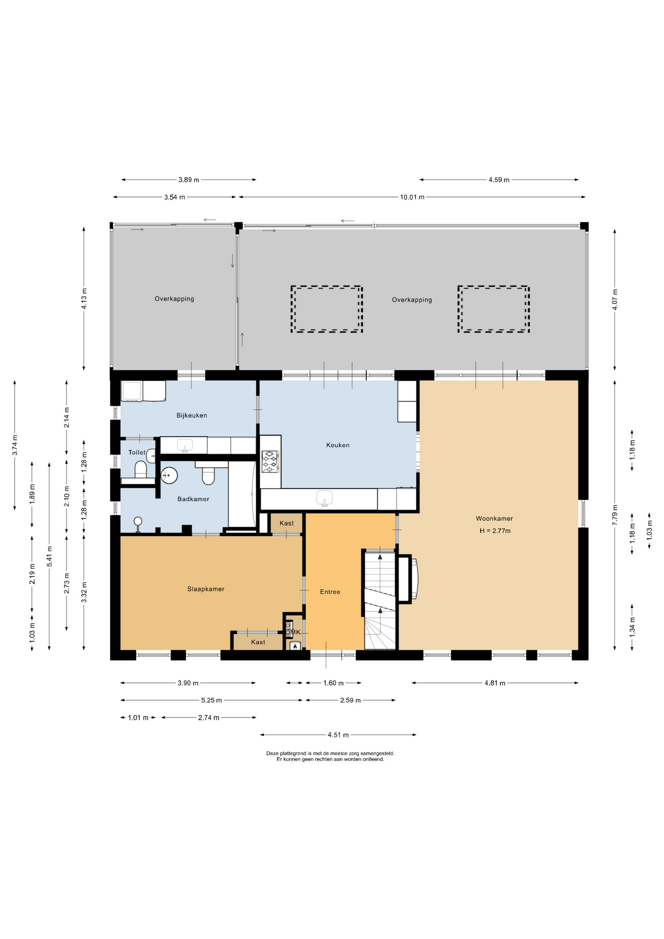
De entreehal is voorzien van een tegelvloer, spachtelputz wanden en een stucwerk plafond en biedt toegang tot de woonkamer, slaapkamer en de meterkast. Een vaste trap zorgt voor toegang tot de 1e verdieping.
De woonkamer is afgewerkt met een tegelvloer, strakke stucwerk wanden en een stucwerk plafond met inbouwverlichting. Grote raampartijen tot aan de grond zorgen voor veel lichtinval en een ruimtelijk gevoel. De aanwezige gashaard voegt extra warmte en sfeer toe aan de ruimte. Daarnaast bieden openslaande deuren directe toegang tot het overdekte terras, waardoor binnen en buiten in elkaar overlopen. Vanuit de woonkamer is er toegang tot de keuken. De keuken is eveneens voorzien van een tegelvloer, stucwerk wanden en een stucwerk plafond. De keukeninrichting is in een hoekinrichting geplaatst en verder uitgerust met diverse inbouwapparatuur zoals een combimagnetron, vaatwasser, een spoelbak, inductiekookplaat en een koelkast. Diverse kasten zorgen voor voldoende opbergruimte. In de kast is een stortkoker voor de was gesitueerd. Ook hier zorgen openslaande deuren voor toegang tot het overdekte terras. De praktische bijkeuken is voorzien van een tegelvloer en een stucwerk plafond. De ruimte is geheel betegeld. De bijkeuken is uitgerust meteen keukenblok met kasten en een spoelbak. De aansluitingen voor de wasapparatuur zijn hier gesitueerd. De toiletruimte is eveneens geheel betegeld en verder voorzien van een zwevend toilet en een fonteintje. De woning beschikt over een slaapkamer met badkamer en-suite op de begane grond, hierdoor is de woning levensloopbestendig. De slaapkamer is afgewerkt met een laminaatvloer, spachtelputz wanden en een stucwerk plafond. Twee praktische inbouwkasten zorgen voor opbergruimte. Raampartijen zorgen voor natuurlijke lichtinval en ventilatie. De ruime badkamer en-suite is geheel betegeld en verder uitgerust met een ligbad, douche, wastafel met wastafelmeubel en een zwevend toilet.

1e verdieping:
De ruime overloop met vide biedt toegang tot 3 slaapkamers, een badkamer en een technische/stookruimte. In de technische ruimte is het stofzuigsysteem, de WTW-installatie en de boiler gesitueerd. Slaapkamer I en III zijn beiden voorzien van een laminaatvloer, spuitwerk wanden en een spuitwerk plafond. In beide ruimtes is bergruimte gecreëerd onder de dakschuinte door middel van praktische schuifkasten. Twee ramen in de kopgevel zorgen voor natuurlijke lichtinval. Slaapkamer II is eveneens voorzien van een laminaatvloer, spuitwerk wanden en een spuitwerk plafond. Een dakkapel zorgt voor natuurlijke lichtinval en ventilatie in de ruimte. De ruime, geheel betegelde badkamer is uitgerust met een ligbad, wastafel met wastafelmeubel, douche, toilet en een designradiator. Een praktisch pluspunt van deze badkamer is de handige stortkoker voor de was. De koker mondt uit in de keuken, waardoor de vuile was direct beneden terechtkomt, dicht bij de wasapparatuur. Dit maakt het doen van de was een stuk efficiënter en zorgt voor extra gemak.

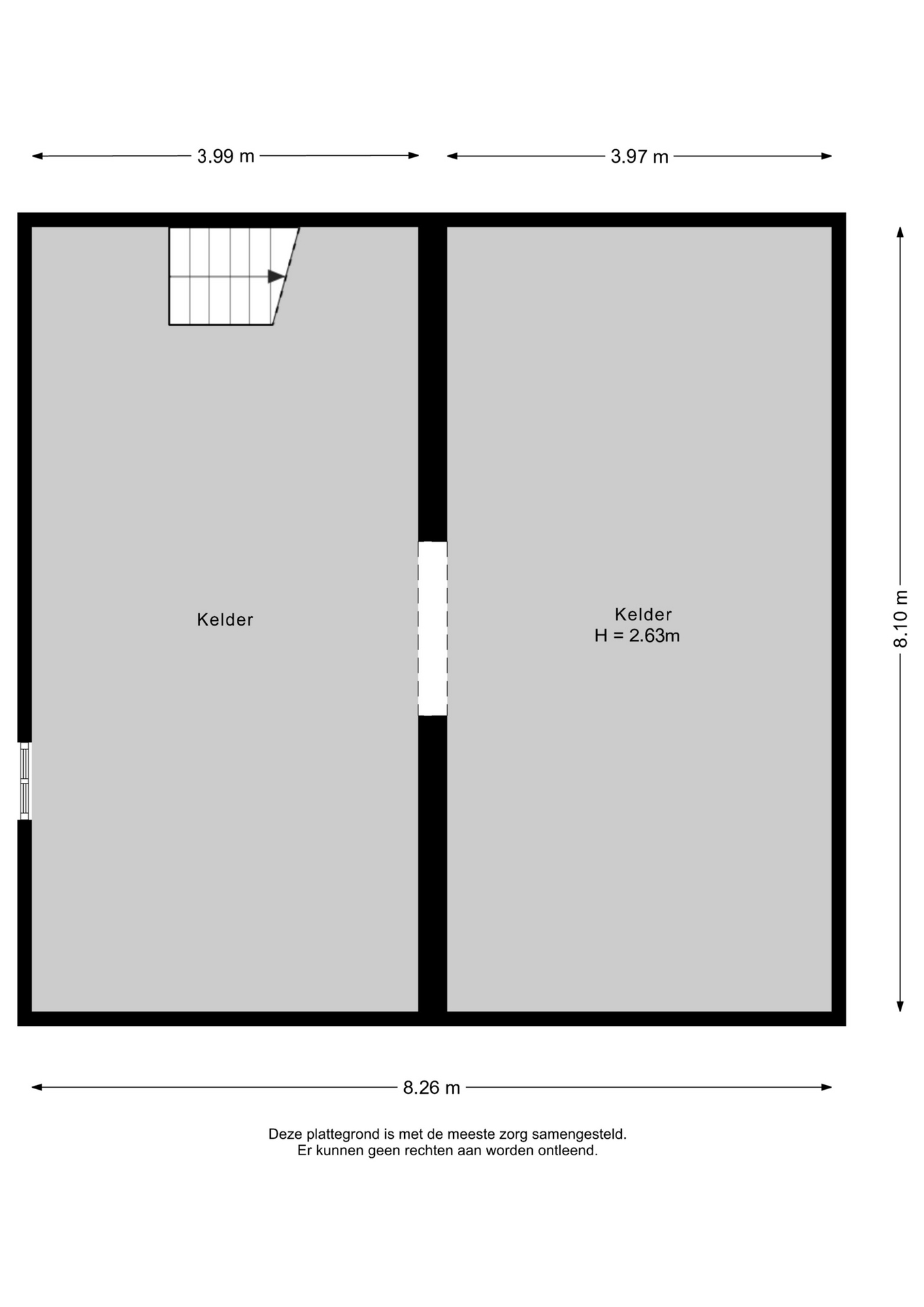
Kelder:
Een vaste trap biedt toegang tot de onderkelderde ruimte onder de woning. Deze kelder bestaat uit meerdere ruimtes, waaronder een 'mancave/café', een speelkamer/chillruimte en een praktische provisiekelder. De veelzijdigheid van deze ruimtes biedt talloze mogelijkheden en zorgt bovendien voor veel extra leef- en opslagruimte in de woning. De mancave/café is afgewerkt met een tegelvloer voorzien van vloerverwarming, stucwerk wanden en een plafond dat deels voorzien is van een systeemplafond en deels van stucwerk. De ruimte is uitgerust met airconditioning, wat bijdraagt aan het comfort. Deze ruimte leent zich perfect voor het organiseren van feestjes of gezellige bijeenkomsten. De speelkamer/chillruimte is afgewerkt met een tegelvloer voorzien van vloerverwarming, spachtelputz wanden en een stucwerk plafond. Deze veelzijdige ruimte biedt volop mogelijkheden en kan gemakkelijk worden ingericht voor diverse andere doeleinden, zoals een hobbykamer, thuiswerkplek of fitnessruimte. In deze ruimte zijn ook de warmtepomp, de glasvezel aansluting, de meterkast met waterontharder en de unit voor de vloerverwarming gesitueerd. De ruime provisiekelder is afgewerkt met een tegelvloer, metselwerk wanden en een stucwerk plafond. Praktische schappen zorgen voor bergruimte. De toiletruimte is geheel betegeld en verder uitgerust met een toilet (Sanibroyeur) en een fonteintje.

GARAGE, TUIN & ERF
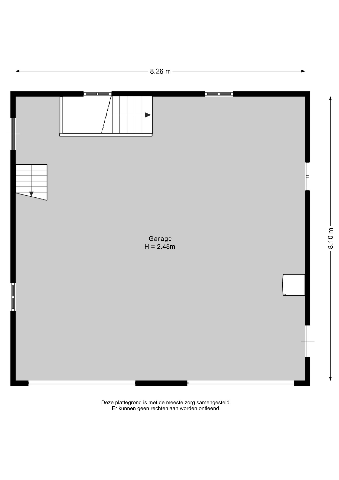
Garage:
De vrijstaande garage is opgetrokken uit metselwerk gevels, stalen spanten en een met pannen gedekt dak. De volledig geïsoleerde garage beschikt over maar liefst drie verdiepingen, die dankzij een vaste trap gemakkelijk toegankelijk zijn.
De begane grond is voorzien van een betonnen vloer en uitgerust met praktische voorzieningen zoals een gootsteen en twee laadpalen voor elektrische auto’s. In de kelder bevinden zich de beregeningsinstallatie, de meterkast, krachtstroomaansluiting, de omvormer voor de zonnepanelen én een voertuigen/goederenlift. Op de zolder bevindt zich de CV-ketel (Nefit Smartline HR). Bovenop de garage zijn zonnepanelen geïnstalleerd, wat bijdraagt aan duurzaamheid en energiebesparing. Deze garage biedt niet alleen veel ruimte en functionaliteit, maar ook moderne gemakken.

TUIN & ERF
De tuin is voorzien van een royaal overdekt terras met glazen schuifwanden, zodat u het hele jaar door kunt genieten van het buitenleven. Vanuit het terras heb je een fraai uitzicht op de tuin en zelfs op de buitenpiste. Daarnaast is er een tuinhuis, een uitgestrekt gazon en diverse volwassen bomen en struiken aanwezig. Voor extra gemak beschikt de tuin over een beregeningsinstallatie. Het erf is grotendeels voorzien van betonklinkers. Een gedeelte, de weg tot aan de garage is afgewerkt met gebakken klinkers. Het deel vanaf de weg, naast de stal en tot aan de achterzijde van de stal is voorzien van gebroken asfalt. Er zijn 2 opritten aanwezig, er is een aparte oprit die toegang biedt tot de accommodatie.
Bij de tweede ingang, richting de accommodatie, bevinden zich twee omheinde dierenweides. Daarnaast is er op dit gedeelte van het terrein een "meterkast" aanwezig, waarin de aansluitingen voor glasvezel, elektra, water en gas voor de stal zijn ondergebracht.

HIPPISCHE ACCOMMODATIE
De goed onderhouden hippische accommodatie bestaat uit een vrijstaande rijhal met een binnenpiste (ca. 20x40 mtr.), een stalgedeelte met in totaal 20 paardenboxen, een ontvangstruimte met appartement, een 2e appartement en een loods/werkplaats.. Het erf is verder ingericht met een buitenpiste, 6 buitenstallen, een stapmolen, een longeercirkel, weiland, een mestvaalt. De rijhal is opgetrokken uit metselwerk gevels, stalen spanten en een geïsoleerd dak. De gevels zijn aan de buitenzijde deels gepotdekseld. Lichtdoorlatende platen zorgen voor natuurlijke lichtinval. Aan de binnenzijde zijn de gevels voorzien van betonelementen. De binnenpiste heeft een afmeting van ca. 20mtr. x 40mtr. en is uitgerust met een eb-vloed bodem. Er is een heather aanwezig. De piste is voorzien van verlichting. De wanden zijn van beton. Een roldeur in de achtergevel en een loopdeur in de zijgevel zorgen voor toegang. Het stalgedeelte is uitgerust met maar liefst 20 paardenboxen, waarvan de voorwanden deels zijn uitgevoerd in kunststof en deels in gegalvaniseerd staal. De boxen hebben betonnen tussen- en achterwanden en zijn voorzien van schuifdeuren. Aan de voorzijde van de hal is de loods/werkplaats gelegen welke is voorzien van een betonnen vloer en wanden en een betonplaten plafond. Aan de rechterzijde is de vaste trap gesitueerd naar de ontvangstruimte en het appartement op de 1e verdieping. De ruime ontvangstruimte is voorzien van een PVC-vloer en deels metselwerk/ deels stucwerk gevels. Er is een keukenblok gesitueerd welke is uitgerust met een gootsteen en een koelkast en bergruimte. De slaapkamer beschikt over dezelfde afwerking als de ontvangstruimte. De badkamer is uitgerust met een douche en een wastafel. Ook is er een zwevend toilet aanwezig. Vanuit de ontvangstruimte is er een fraai zicht op de binnenpiste. In de berging zijn de aansluitingen voor de wasapparatuur, de unit voor de vloerverwarming, de opstelling voor de CV-ketel (Nefit Topline) en de omvormer voor de zonnepanelen gesitueerd. De stro opslag aan de achterzijde van de rijhal is afgewerkt met een betonnen vloer. De voersilo is hier gesitueerd. Een roldeur aan de achtergevel en een loopdeur zorgen voor toegang tot het erf. Het dak is geïsoleerd.
Middels een loopdeur is er toegang tot de stal. Een roldeur zorgt dan weer voor toegang tot de binnenpiste. Er zijn praktische magazijnopstellingen opstellingen gesitueerd. Er is krachtstroom aanwezig en een hogedrukleiding voor het reinigen van de stallen. Een elektrische roldeur en een loopdeur zorgen voor toegang tot het erf. Openslaande deuren zorgen voor toegang tot de rijhal. Daarnaast zijn 10 boxen uitgerust met praktische buitenluiken. Een groot voordeel is de hooizolder met handige hooiluiken, strategisch boven de stallen geplaatst, waardoor hooi en stro eenvoudig direct in de boxen kunnen worden gegooid. Verder draagt de aanwezige sleepketting voor de mest bij aan extra gemak en efficiëntie in het onderhoud van de stallen. Naast de stallen is een douche- en toiletruimte voor heren en dames gesitueerd. Ook zijn er 3 wasplaatsen aanwezig, welke zijn voorzien van een warm- en koud watervoorziening. Via een separate ingang, gelegen naast de zadelkamer is het appartement bereikbaar. Het appartement is afgewerkt met een vinylvloer, deels metselwerk / deels stucwerk wanden en een systeemplafond. Er bergruimte onder de dakschuinte gecreëerd. De woonkamer van het appartement is uitgerust met een keukenblok. Vanuit deze ruimte is er zicht op de binnenpiste. De slaapkamer is voorzien van een praktische inbouwkast. De badkamer is ingericht met een douche, wastafel en een toilet en is geheel betegeld.
De zadelkamer beschikt over vaste kasten. De kantine/wasruimte is uitgerust met een keukenblok en de aansluitingen voor de wasapparatuur. Ook is er een praktische voerberging aanwezig. Openslaande deuren zorgen voor toegang.

OVERIGE FACILITEITEN
Het erf is verder ingericht met een buitenpiste, een praktische stapmolen en een longeercirkel. Daarnaast zijn er 6 buitenstallen, een mestvaalt en een opslagruimte voor stro aanwezig. Het geheel wordt verder aangevuld met een royaal weiland verdeeld in verschillende paddocks. Deze uitgebreide faciliteiten zorgen ervoor dat het geheel volop mogelijkheden biedt voor de (semi)professionele paardenliefhebber! De buitenpiste heeft een afmeting van ca. 50mtr. x 25mtr. is uitgerust met een eb/vloedbodem en voorzien van een houten omheining. De longeercirkel is omheind met hout en verder voorzien van een eb/vloed bodem. De stapmolen is geschikt voor 4 paarden en is uitgerust met een betonnen vloer en een houten omheining. Op het terrein zijn 6 buitenstallen gesitueerd. Deze stallen zijn voorzien van deels kunststof/ deels gegalvaniseerde voorwanden met een schuifdeur. Het dak is bedekt met damwand. De mestvaalt is verdiept gelegen, uitgerust met een betonnen vloer en wanden. Toevoer geschiedt via de mestketting. Toegang via de helling. Het weiland is verdeeld in paddocks, welke zijn omheind met houten palen en lint. Er is een middenpad aanwezig zodat je gemakkelijk de verschillende paddocks kunt bereiken.

BIJZONDERHEDEN
- Object is aangesloten op water, elektra, warmtepomp, riolering en glasvezel.
- Op het dak van het woonhuis en garage zijn 41 zonnepanelen gesitueerd. Het dak van de stal is voorzien van 64
zonnepanelen.
- Het woonhuis en de garage zijn volledig geïsoleerd.
- Het woonhuis beschikt over een alarminstallatie.
- De woning is volledig voorzien van vloerverwarming.
- De gashaard in de woonkamer is momenteel niet in gebruik vanwege de warmtepomp, de gasaansluiting is wel
aanwezig.
- In de woonkamer is airconditioning aanwezig.
- In 2010 is de rijhal gebouwd door Hoekx Stallenbouw.
- In de loods/werkplaats zijn krachtstroom en een hogedrukleiding aanwezig.
- Veel roerende zaken/machines zijn ter overname.
- In het gehele complex is een muziekinstallatie in aanwezig.
- Er is een oprit aanwezig die naar het woonhuis gaat én een aparte oprit gaat naar de accommodatie.
- Op het geheel rust de bestemming "Agrarisch / Agrarisch bedrijf en bedrijfswoning".
- Er is een mlieuvergunning aanwezig voor het houden van 25 paarden (jonger dan 3 jaar).

Kenmerken

Overdracht
Prijs op aanvraag
Status
beschikbaar
Aanvaarding
in overleg
Bouw
Soort woonhuis
Eengezinswoning
Soort bouw
vrijstaande woning
Bouwjaar
2005
Energieklasse
A_PPP
Soort dak
zadeldak
Slaapkamers
4
Badkamers
2
Oppervlakten en inhoud
Woonoppervlakte
176 m2
Overige inpandige ruimte
104 m2
Externe bergruimte
2314 m2
Inhoud
975 m3
Perceeloppervlakte
29990 m2
Baerz & Co Property Brochure

Brochure

Informatie / bezichtigingsaanvraag

Video's

Foto's

Plattegronden